ОСНОВНЫЕ ПРЕИМУЩЕСТВА
Безопасность и надежность
Регулировка предельной высоты, ограничение скорости подъема и скорости поворота обеспечивают безопасность во время перемещения, подъема и маневрирования. Замедление в конце перемещения вперед/назад позволяет стабилизировать движение мачты без толчков. Интеграция электромагнитной и гидравлической тормозных систем обеспечивает короткий тормозной путь, курсовую устойчивость и остановку без резких рывков.
Удобная эксплуатация
Электрогидравлическое пропорциональное управление обеспечивает точность микроперемещений и стабильность работы, а частотное регулирование и современные моторы переменного тока позволяют обеспечить непревзойденную плавность управления движениями.
Экономичность и долговечность
Приводной двигатель переменного тока, электродвигатели гидравлической системы и рулевого управления не требуют технического обслуживания, отличаются долгим и безотказным сроком службы, обеспечивая при этом высокую эффективность при эксплуатации.
Комфортное вождение
Просторная кабина для оператора и эргономичная конструкция органов управления соответствуют естественным положениям человеческого тела при управлении, эффективно снижая риск неправильной эксплуатации.
Простое техническое обслуживание
Конструкция с боковым положением батареи исключает необходимость сложного демонтажа оборудования во время технического обслуживания, позволяя без труда проводить осмотр, ремонт и плановое обслуживание.
электрические ричтраки lgmg
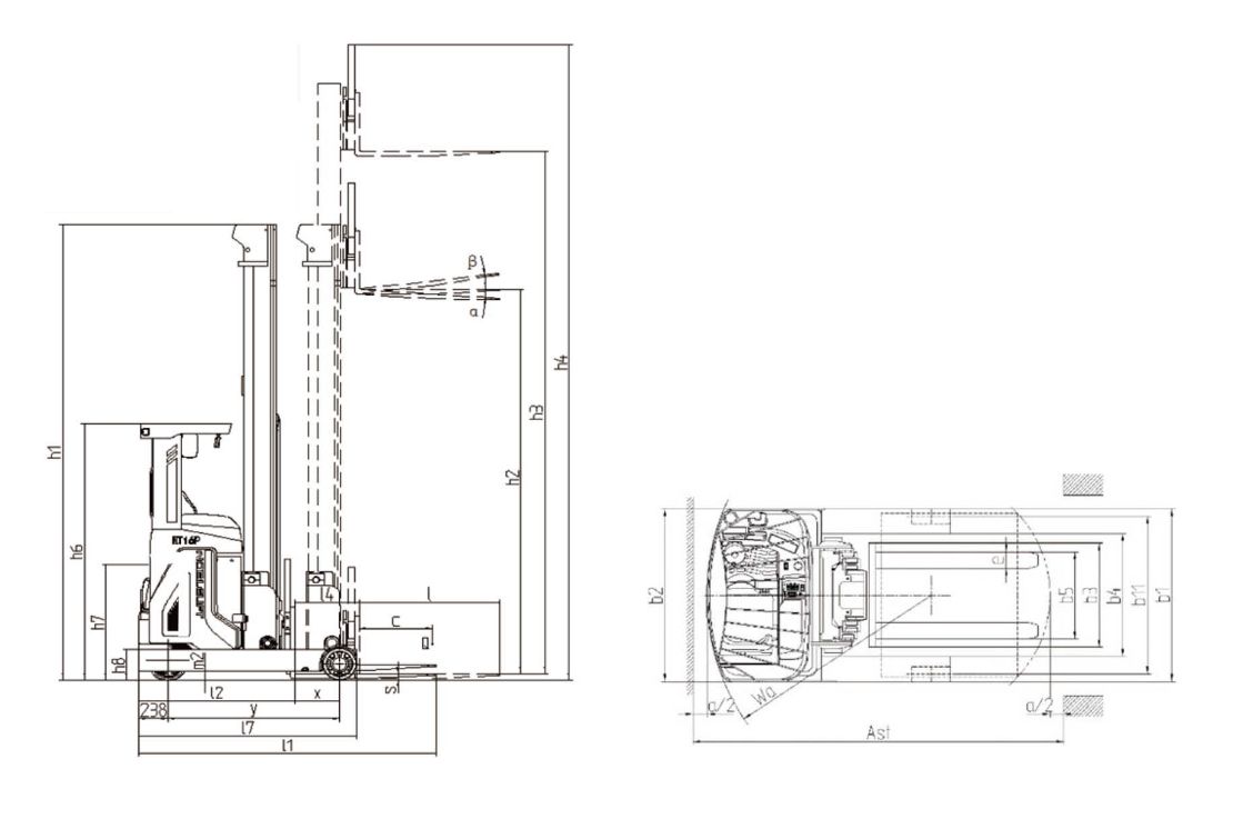
ТЕХНИЧЕСКИЕ ХАРАКТЕРИСТИКИ
| МОДЕЛИ | CQD16 | CQD20 | ||
| Тип | / | Электрический | Электрический | |
| Положение оператора при вождении | / | Сидя | Сидя | |
| Номинальная грузоподъемность | Q (кг) | 1600 | 2000 | |
| Расстояние от каретки до центра тяжести груза на вилах | с (мм) | 600 | 600 | |
| Расстояние от центра ведущей оси до основания вил | x (мм) | 365/176 | 395/200 | |
| Колесная база | y (мм) | 1400 | 1500 | |
| МАССА | ||||
| Снаряженная масса, включая батарею | кг | 3990 | 4250 | |
| Нагрузка на приводное/опорное колесо, мачта сложена, без груза | кг | 2450/1540 | 2580/1670 | |
| Нагрузка на приводное/опорное колесо, мачта выдвинута, с грузом | кг | 890/4700 | 766/5484 | |
| Нагрузка на приводное/опорное колесо, мачта сложена, с грузом | кг | 2180/3410 | 2290/3960 | |
| КОЛЕСА И ШИНЫ | ||||
| Тип шин: литая, суперэластик, пневматическая, полиуретановая | / | Полиуретан | Полиуретан | |
| Размер передних шин | Øxw (мм) | Ø343х140 | Ø343х140 | |
| Размер задних шин | Øxw (мм) | Ø285х110 | Ø330х110 | |
| Количество передних/задних колес (х=ведуших колес) | / | 1х/2 | 1х/2 | |
| Ширина колеи спереди | b11 (мм) | 1160 | 1160 | |
| ОСНОВНЫЕ РАЗМЕРЫ | ||||
| Угол наклона мачты вперед/назад | a/β(°) | 4°/-2° | 4°/-2° | |
| Высота мачты при опущенных вилах | h1 (мм) | 2235 | 2235 | |
| Свободный ход вил | h2 (мм) | 1563 | 1563 | |
| Высота подъёма груза на вилах | h3 (мм) | 4500 | 4500 | |
| Высота мачты при максимальном подъеме вил | h4 (мм) | 5410 | 5410 | |
| Высота верхнего защитного ограждения кабины | h6 (мм) | 2200 | 2200 | |
| Высота сиденья оператора | h7 (мм) | 960 | 960 | |
| Высота опор | h8 (мм) | 270 | 270 | |
| Высота опущенных вил над основанием | h13 (мм) | 40 | 40 | |
| Габаритная длина (всего) | L1 (мм) | 2412 | 2488 | |
| Длина по каретку (без вил) | L2 (мм) | 1273 | 1338 | |
| Габаритная ширина | b1 (мм) | 1270 | 1270 | |
| Размеры вил (толщина/ширина/длина) | s/e/| (мм) | 35/100/1150 | 40/120/1150 | |
| Тип каретки по ISO 2328, класс/тип A, B | / | 2A | 2A | |
| Ширина между вилами | b5 (мм) | 200-740/200-818 | 200-740/200-818 | |
| Дорожный просвет с грузом под мачтой | m1 (мм) | 90 | 90 | |
| Дорожный просвет в центре колесной базы | m2 (мм) | 75 | 75 | |
| Ширина прохода для поддонов 1 000х1 200 поперек | Ast (мм) | 2720 | 2840 | |
| Ширина прохода для поддонов 800х1 200 поперек | Ast (мм) | 2780 | 2900 | |
| Радиус разворота внешний | Wa (мм) | 1650 | 1750 | |
| Длина по опорам | L7 (мм) | 1780 | 1900 | |
РАБОЧИЕ ХАРАКТЕРИСТИКИ | ||||
| Скорость движения с грузом/без груза | км/ч | 10.5/10.5 | 10.5/10.5 | |
| Скорость подъема вил с грузом/без груза | м/с | 0.35/0.5 | 0.35/0.5 | |
| Скорость опускания вил с грузом/без груза | м/с | 0.45/0.45 | 0.45/0.45 | |
| Фронтальная скорость, с грузом/без груза | м/с | 0.1/0.1 | 0.1/0.1 | |
| Макс. преодолеваемый уклон с грузом/без груза | % | 10/10 | 10/10 | |
| Рабочий тормоз | / | Гидравлический/ Электрический | Гидравлический/ Электрический | |
| ЭЛЕКТРОДВИГАТЕЛИ, БАТАРЕЯ | ||||
| Приводной электродвигатель (S2, 60мин) | кВт | 6.4/7 | 6.4/7 | |
| Электродвигатель гидросистемы (S3, 15%) | кВт | 12.5 | 12.5 | |
| Тип стандартной тяговой батарея | / | Литий-ионный | Литий-ионный | |
| Напряжение батареи, номинальная емкость (K5) | B/Ач | 48/300 опция: 48/400 | 48/400 опция: 48/300 | |
| Тип приводного электромотора | / | Переменного тока | Переменного тока | |
| ПРОЧИЕ ДАННЫЕ | ||||
| Уровень шума согласно EN 12503 | дБ (А) | 68 | 68 |
Сqd16/cqd20
| Модель | Высота подъема h3 (мм) | Свободный ход h2 (мм) | Высота мачты h1 (мм) | Наклон вил a/β(°) | |
| 16М450 | 4500 | 1563 | 2235 | 4°/-2° | |
| 16М500 | 5000 | 1730 | 2400 | 4°/-2° | |
| 16М550 | 5500 | 1897 | 2568 | 4°/-2° | |
| 16М600 | 6000 | 2063 | 2735 | 4°/-2° | |
| 16М650 | 6500 | 2230 | 2900 | 4°/-2° | |
| 16М700 | 7000 | 2397 | 3068 | 4°/-2° | |
| 16М750 | 7500 | 2563 | 3234 | 4°/-2° | |
| 16М800 | 8000 | 2730 | 3400 | 4°/-2° | |
| 16М850 | 8500 | 2897 | 3567 | 4°/-2° | |
| 16М900 | 9000 | 3063 | 3734 | 4°/-2° | |
| 16М950 | 9500 | 3230 | 3900 | 4°/-2° | |
| 20М450 | 4500 | 1563 | 2235 | 4°/-2° | |
| 20М500 | 5000 | 1730 | 2400 | 4°/-2° | |
| 20М550 | 5500 | 1897 | 2568 | 4°/-2° | |
| 20М600 | 6000 | 2063 | 2735 | 4°/-2° | |
| 20М650 | 6500 | 2230 | 2900 | 4°/-2° | |
| 20М700 | 7000 | 2397 | 3068 | 4°/-2° | |
| 20М750 | 7500 | 2563 | 3234 | 4°/-2° | |
| 20М800 | 8000 | 2730 | 3400 | 4°/-2° | |
| 20М850 | 8500 | 2897 | 3567 | 4°/-2° | |
| 20М900 | 9000 | 3063 | 3734 | 4°/-2° | |
| 20М950 | 9500 | 3230 | 3900 | 4°/-2° |
| МОДЕЛИ | CQD16A | CQD20A | CQD20B | ||
| Тип | / | Электрический | Электрический | Электрический | |
| Положение оператора при вождении | / | Сидя | Сидя | Сидя | |
| Номинальная грузоподъемность | Q (кг) | 1600 | 2000 | 2000 | |
| Расстояние от каретки до центра тяжести груза на вилах | с (мм) | 600 | 600 | 600 | |
| Расстояние от центра ведущей оси до основания вил | x (мм) | 365/176 | 395/200 | 405/234 | |
| Колесная база | y (мм) | 1400 | 1500 | 1590 | |
| МАССА | |||||
| Снаряженная масса, включая батарею | кг | 3960 | 4220 | 5200 | |
| Нагрузка на приводное/опорное колесо, мачта сложена, без груза | кг | 2420/1540 | 2560/1660 | / | |
| Нагрузка на приводное/опорное колесо, мачта выдвинута, с грузом | кг | 830/4760 | 746/5474 | / | |
| Нагрузка на приводное/опорное колесо, мачта сложена, с грузом | кг | 2100/3460 | 2270/3950 | / | |
| КОЛЕСА И ШИНЫ | |||||
| Тип шин: литая, суперэластик, пневматическая, полиуретановая | / | Полиуретан | Полиуретан | Полиуретан | |
| Размер передних шин | Øxw (мм) | Ø343х140 | Ø343х140 | Ø400х160 | |
| Размер задних шин | Øxw (мм) | Ø285х110 | Ø330х110 | Ø330х140 | |
| Количество передних/задних колес (х=ведуших колес) | / | 1х/2 | 1х/2 | 1х/2 | |
| Ширина колеи спереди | b11 (мм) | 1160 | 1160 | 1290 | |
| ОСНОВНЫЕ РАЗМЕРЫ | |||||
| Угол наклона мачты вперед/назад | a/β(°) | 4°/-2° | 4°/-2° | 4°/-2° | |
| Высота мачты при опущенных вилах | h1 (мм) | 2235 | 2235 | 4067 | |
| Свободный ход вил | h2 (мм) | 1563 | 1563 | 3397 | |
| Высота подъёма груза на вилах | h3 (мм) | 4500 | 4500 | 10000 | |
| Высота мачты при максимальном подъеме вил | h4 (мм) | 5410 | 5410 | 10910 | |
| Высота верхнего защитного ограждения кабины | h6 (мм) | 2200 | 2200 | 2200 | |
| Высота сиденья оператора | h7 (мм) | 960 | 960 | 1100 | |
| Высота опор | h8 (мм) | 270 | 270 | 270 | |
| Высота опущенных вил над основанием | h13 (мм) | 40 | 40 | 40 | |
| Габаритная длина (всего) | L1 (мм) | 2412 | 2488 | 2580 | |
| Длина по каретку (без вил) | L2 (мм) | 1273 | 1338 | 1430 | |
| Габаритная ширина | b1/b2 (мм) | 1270 | 1270 | 1430/1270 | |
| Размеры вил (толщина/ширина/длина) | s/e/| (мм) | 35/100/1150 | 40/120/1150 | 40/120/1150 | |
| Тип каретки по ISO 2328, класс/тип A, B | / | 2A | 2A | 2A | |
| Ширина между вилами | b5 (мм) | 200-740/200-818 | 200-740/200-818 | 200-740 | |
| Расстояние между опорами | b4 (мм) | 900 | 900 | 1000 | |
| Максимальный вылет | L4 (мм) | 525 | 595 | 640 | |
| Дорожный просвет с грузом под мачтой | m1 (мм) | 90 | 90 | 90 | |
| Дорожный просвет в центре колесной базы | m2 (мм) | 75 | 75 | 75 | |
| Ширина прохода для поддонов 1 000х1 200 поперек | Ast (мм) | 2720 | 2840 | 2880 | |
| Ширина прохода для поддонов 800х1 200 поперек | Ast (мм) | 2780 | 2900 | 2957 | |
| Радиус разворота внешний | Wa (мм) | 1650 | 1750 | 1840 | |
| Длина по опорам | L7 (мм) | 1780 | 1900 | 2000 | |
РАБОЧИЕ ХАРАКТЕРИСТИКИ | |||||
| Скорость движения с грузом/без груза | км/ч | 10.5/10.5 | 10.5/10.5 | 10.5/10.5 | |
| Скорость подъема вил с грузом/без груза | м/с | 0.35/0.5 | 0.35/0.5 | 0.35/0.5 | |
| Скорость опускания вил с грузом/без груза | м/с | 0.45/0.45 | 0.45/0.45 | 0.45/0.45 | |
| Фронтальная скорость, с грузом/без груза | м/с | 0.1/0.1 | 0.1/0.1 | 0.1/0.1 | |
| Макс. преодолеваемый уклон с грузом/без груза | % | 10/10 | 10/10 | 10/10 | |
| Рабочий тормоз | / | Гидравлический/ Электрический | Гидравлический/ Электрический | Гидравлический/ Электрический | |
| ЭЛЕКТРОДВИГАТЕЛИ, БАТАРЕЯ | |||||
| Приводной электродвигатель (S2, 60мин) | кВт | 6.4/7 | 6.4/7 | 7 | |
| Электродвигатель гидросистемы (S3, 15%) | кВт | 12.5 | 12.5 | 12.5 | |
| Тип стандартной тяговой батарея | / | Литий-ионный | Литий-ионный | Литий-ионный | |
| Напряжение батареи, номинальная емкость (K5) | B/Ач | 48/300 опция: 48/400 | 48/400 опция: 48/300 | 48/400 опция: 48/300 | |
| Тип приводного электромотора | / | Переменного тока | Переменного тока | Переменного тока | |
| ПРОЧИЕ ДАННЫЕ | |||||
| Уровень шума согласно EN 12503 | дБ (А) | 68 | 68 | 68 |
Сqd16A/cqd20A
| Модель | Высота подъема h3 (мм) | Свободный ход h2 (мм) | Высота мачты h1 (мм) | Наклон вил a/β(°) | |
| 16М450 | 4500 | 1563 | 2235 | 4°/-2° | |
| 16М500 | 5000 | 1730 | 2400 | 4°/-2° | |
| 16М550 | 5500 | 1897 | 2568 | 4°/-2° | |
| 16М600 | 6000 | 2063 | 2735 | 4°/-2° | |
| 16М650 | 6500 | 2230 | 2900 | 4°/-2° | |
| 16М700 | 7000 | 2397 | 3068 | 4°/-2° | |
| 16М750 | 7500 | 2563 | 3234 | 4°/-2° | |
| 16М800 | 8000 | 2730 | 3400 | 4°/-2° | |
| 16М850 | 8500 | 2897 | 3567 | 4°/-2° | |
| 16М900 | 9000 | 3063 | 3734 | 4°/-2° | |
| 16М950 | 9500 | 3230 | 3900 | 4°/-2° | |
| 20М450 | 4500 | 1563 | 2235 | 4°/-2° | |
| 20М500 | 5000 | 1730 | 2400 | 4°/-2° | |
| 20М550 | 5500 | 1897 | 2568 | 4°/-2° | |
| 20М600 | 6000 | 2063 | 2735 | 4°/-2° | |
| 20М650 | 6500 | 2230 | 2900 | 4°/-2° | |
| 20М700 | 7000 | 2397 | 3068 | 4°/-2° | |
| 20М750 | 7500 | 2563 | 3234 | 4°/-2° | |
| 20М800 | 8000 | 2730 | 3400 | 4°/-2° | |
| 20М850 | 8500 | 2897 | 3567 | 4°/-2° | |
| 20М900 | 9000 | 3063 | 3734 | 4°/-2° | |
| 20М950 | 9500 | 3230 | 3900 | 4°/-2° |
cqd20B
| Модель | Высота подъема h3 (мм) | Свободный ход h2 (мм) | Высота мачты h1 (мм) | Наклон вил a/β(°) | |
| 20М1000 | 10000 | 3397 | 4067 | 4°/-2° | |
| 20М1050 | 10500 | 3563 | 4234 | 4°/-2° | |
| 20М1100 | 11000 | 3730 | 4400 | 4°/-2° | |
| 20М1150 | 11500 | 3897 | 4567 | 4°/-2° | |
| 20М1200 | 12000 | 4063 | 4733 | 4°/-2° | |
| 20М1250 | 12500 | 4230 | 4900 | 4°/-2° | |
| 20М1350 | 13500 | 4563 | 5233 | 4°/-2° |
сервис LGMG
Компания "АиСТ" является официальным дистрибьютером LGMG в России, что позволяет предложить нашим покупателям технику по доступным ценам..
"АиСТ" работает с различными финансовыми партнерами, технику можно приобрести в лизинг или по программе Trade-in. На стоянке можно ознакомиться с различными моделями и получить консультацию.
+ сервис
проводят обучение персонала.
+ЗАПЧАСТИ
+ расходные материалы
+ ГАРАНТИЯ
гарантия 12 месяцев и 2000 м/ч (с возможностью увеличения до 3-х лет).
20 лет
на рынке
клиентов. Которые доверяют нам
уже долгие годы.
обслуживание
купленных у нас авто
купить автомобиль, но и сделать
диагностику его состояния.
Выгодня
рассрочка
рассрочку по выгодным условиям
от надежных банков.
Большой
автопарк
найдете большой выбор моделей,
который мы постоянно обновляем.
просто купить
ЛИЗИНГ. ТРЕЙД-ИН
Мы предлагаем удобные финансовые инструменты для приобретения техники сохранения оборотных средств предприятия. Лизинг - эффективный инструмент финансирования для приобретения специальной дорожно-строительной техники. Простой механизм рассмотрения заявки, понятный расчет и небольшой перечень необходимой документации позволяет оптимально быстро оформить лизинг для клиента.
Сделки по программе Трейд-ин - это индивидуальный подход к каждому клиенту и формирование особого предложения.
Контактные данные
С НАМИ МОЖНО СВЯЗАТЬСЯ
20 лет
на рынке
клиентов. Которые доверяют нам
уже долгие годы.
обслуживание
купленных у нас авто
купить автомобиль, но и сделать
диагностику его состояния.
Выгодня
рассрочка
рассрочку по выгодным условиям
от надежных банков.
Большой
автопарк
найдете большой выбор моделей,
который мы постоянно обновляем.